|
||||||
| 種目 | 所在地 | 土地面積 | 建物面積 間取 |
建物構造 階建 |
西暦築年月 | |
|---|---|---|---|---|---|---|
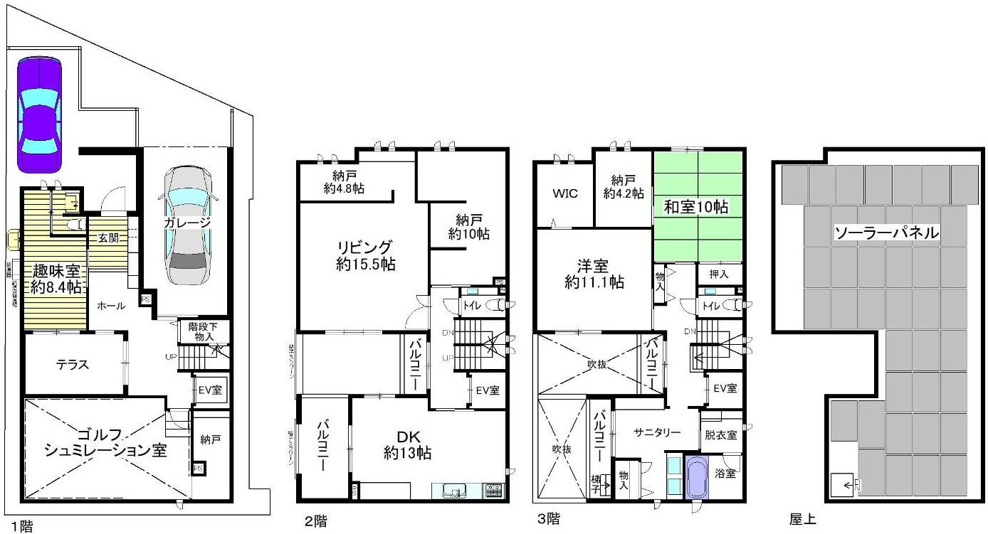
| 中古戸建 | 大阪市此花区島屋3丁目 | 165.88m2 ( 50.17坪 ) | 265.22m2 ( 80.22坪 ) 3SLDK+フリールーム |
鉄骨造合金メッキ鋼板葺 3階 |
2014/03 | |
| 物件番号 | Bk25702 中古戸建 | ||
|---|---|---|---|
| 交通 | 最寄駅 JRゆめ咲線「安治川口」駅 徒歩 4分 | 学区 | 小学校区:島屋小学校 中学校区:梅香中学校 |
| 現況 | 居住中 | 引渡時期 | 相談 |
| 建ぺい率 | 60% | 容積率 | 200% |
| 都市計画 | 市街化区域 | 用途地域 | 準工業地域 |
| 地目 | 宅地 | 土地権利 | 所有権 |
| 接道 | 北西 5.4m(幅員) 公道 10.34m(接面) | 私道面積 | |
| 駐車場 | 有 | その他費用 | |
| 取引態様 | 一般媒介 | 価格履歴 | |
| 特色 | 土地面積50.19坪/鉄骨造合金メッキ鋼板葺3階建/2014年3月建築/積水ハウス施工・拘りの注文建築住宅/長期優良住宅建築等計画認定物件/3LDK+4納戸+フリールーム+車庫2台/ホームエレベーター付/屋上にソーラーパネル付(年間発電量約40万円相当)/JRゆめ咲線「安治川口」駅徒歩4分/ユニバーサル・スタジオ・ジャパンまで1駅/ | ||
※掲載されている物件データが現状と異なる場合は現状を優先します
![]()
- 関西不動産販売株式会社
- 本社 : 06-6536-2081
- 阿倍野支店 : 06-6623-6766
















